
澤暘松江是位在台北松江路上的最新建案,位於忠孝新生和松江南京兩大捷運站之間,坐擁城市金融中心,地段優越生活便利,學區資源相當完善,卻又保有鬧中取靜難得的靜謐氛圍。稀有角地開發,規劃1至3房格局,巧妙展現高坪效與優質採光,申請ESG三大國家候選標章,廚具和衛浴等標準配備誠意十足,就來看看我的心得分享吧!
澤暘松江交通位置
澤暘松江座落在台北市中山區松江路上,距離捷運「松江南京站」和「忠孝新生站」都是大約500公尺距離,要搭乘「中和新蘆線」、「松山新店線」以及「板南線」都很方便,松江路沿線公車班次密集,以地理位置來說真心是非常優質。
松江路有「台北華爾街」之稱,各大金融機構商辦大樓林立,餐廳小吃等選擇多,周邊便利性一應俱全,根本就是超熱鬧的核心地段!澤暘松江建築面對著松江路、松江路25巷和渭水路3巷,而建國啤酒廠就位在基地後方,地點精華,卻又難得保有鬧中取靜的清幽感。
近幾年松江路上的建案大多是大坪數豪宅,例如「東西匯」、「松江1號院」、「華固松疆」、「琢豐」和「揚昇松江苑」等,而「澤暘松江」是少數1至3房小坪數規劃,對於想在松江路一帶成家的年輕族群,是相對難得的入手機會。
澤暘松江接待中心
澤暘松江就位在松江路建設基地上,兩層樓建築,挑高空間以米色為基調,點綴上金色元素線條,豪華貴氣卻又保有細膩質感。好愛這高腳椅吧台和窗邊的溫馨座位,午後光影灑落,根本是質感咖啡廳來著。

接待中心位在建築基地這點我覺得很棒,在賞屋的同時,也能透過不同面向的窗景,想像將來交屋之後的視野。結束後也能在附近走走逛逛,更深入了解澤暘松江的地理位置與生活便利。
澤暘松江介紹
澤暘松江雖然是澤暘建設的第一個案子,不過江德成總經理其實深耕大台北已超過30年,同時擔任咊暘建設總經理,過去也曾擔任梅齡建設副總經理以及江氏建設執行副總。和周簡建築事務所合作,並邀請日商台灣大林組擔任營建顧問,將日式職人精神融入建築工藝中,堪稱強強聯手令人期待。
申請ESG「耐震標章」、「銀級綠建築」和「銀級智慧建築」三大國家候選標章,不僅提升建築安全性,也同步國際趨勢強調居住舒適,並在節能、減廢、健康和生態上注入永續理念。
澤暘松江建築
澤暘松江建築基地規模約172坪,地上15層地下4層,坪數為13至27坪,1至3房格局,公設比約36%至37%,住宅95戶,共用兩部電梯。預計2026年開工,預計2029下半年交屋。
建築外觀選用安格拉黑、雪白蒙卡、玉晶石和藍珊瑚等不同石材呈現出營造出層次分明的質感,,整體風格現代俐落,展現精品宅邸的質感品味。
公共設施主要有接待大廳、交誼廳、包裹區以及頂樓空中花園,並規劃倉儲式車位,共計41個。
澤暘松江標準配備
澤暘松江的標準配備皆為高規格選材,採用日本皇家御用三協氣密窗,台玻集團6+6 Low-E膠合玻璃,並搭配荷蘭普特絲Poll-tex防霾紗窗,全方位守護居家健康品質。此外隔音墊是1665年創辦至今的法國品牌聖戈班,傳承巴黎凡爾賽宮「鏡廳」玻璃技術,受到全球國際級劇院採用,提升住家的靜音感受。
煮夫煮婦們的夢幻逸品日本Cleanup廚具,美型外觀又有超強收納功能!Rinnai隱藏式排油煙機和烘碗機,一房會搭配IH感應爐,20坪以上是天然氣瓦斯爐。Bosch微烤爐也是我的愛,竟然直接是標配,這太讓人心動了吧!
水質方面,澤暘松江也下足功夫!第一道使用德國BWT全棟淨水系統;第二道則是GEJP全屋抑菌淨水技術;最後再搭配GEJP除鉛淨水器,層層把關,讓每位住戶從洗菜、飲水到沐浴都能安心使用

以往總會見到預售屋的主衛浴和客衛浴設備常常會有等級上的差異,澤暘松江通通配有TOTO全自動免治馬桶和Panasonic浴室暖風機,這點我也覺得很加分。
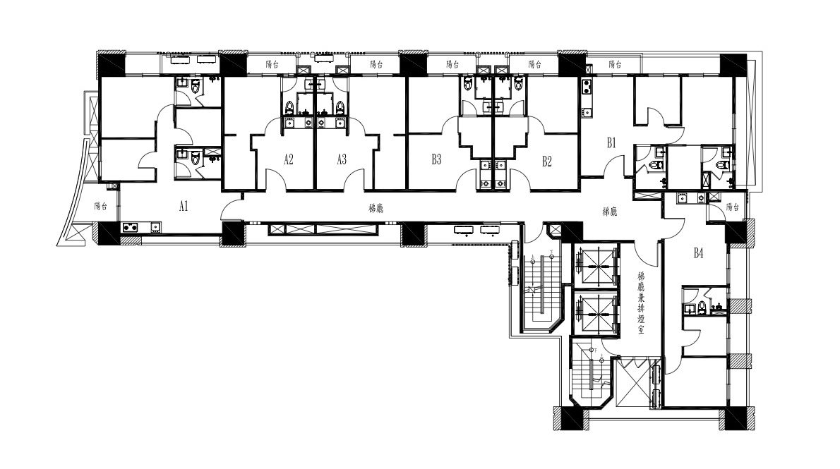
澤暘松江格局平面圖
- A1|3房:約27.64坪
- A2|1房:約14.85坪
- A3|1房:約14.85坪
- B1|2房:約23.45坪
- B2|1房:約13.99坪
- B3|1房:約13.99坪
- B4|2房:約19.14坪
放上格局平面圖,讓你們能更了解澤暘松江,一層共有7戶,共用2部電梯。
A1戶型擁有雙面採光,面對40米寬的松江路和松江路25巷;B1則稍稍小了些,另一側朝向建國啤酒廠,都是適合小家庭入住三房格局。
A2和A3格局類似,B2和B3的格局類似,不過大小和方向有些差別,都是朝著15米寬的松江路25巷。以往見到市區小坪數大多會是長型格局,澤暘松江保留了足夠的面寬,甚至衛浴也都有開窗。
B4則是最讓我驚艷的小坪數戶別,橫向格局規劃,不論客廳、主臥室、次臥室和浴室通通都有大窗景,面對著建國啤酒廠,這在寸土寸金的台北地區有多難能可貴!當天結束我也馬上留下資訊,詢問B4的中間樓層報價,有多心急呀哈哈哈!
接待中心共有兩間樣品屋,以下也能一一分享我的心得。
澤暘松江|B3 1房1衛 13.99坪
B2和B3的格局相似,面對著松江路25巷,1房1衛設計,權狀為13.99坪(再更新),開放式廚房規劃,甚至還設置了轉角冰箱區,小巧思我覺得很貼心。旁邊還有很大空間能作為更衣間或儲物櫃使用,最適合雙人小家庭。
3米25樓高整體感受很舒適,在設計師巧妙規劃之下,將客廳和臥室以半開放式屏風做為區隔,讓整體空間更有通透感。
開放式廚房位在入口處,其中這華麗白熊的轉角位置,就是規劃用來置放冰箱的。

臥室區域除了雙人大床之外,床鋪兩側仍保有寬裕空間,可擺放床邊桌與化妝台,陽台空間也很充足。
是說澤暘松江的樣品屋設計師一定很懂女生需求,不僅以愛馬仕的橘色調為主題,更將旁邊的空間規劃成更衣室,這個轉角設計對於喜歡打扮的人來說,完全是超實用的夢幻空間。
即使是小坪數格局,衛浴依然有對外窗,對於又濕又悶的台北人來說好重要!
澤暘松江|A1 3房2衛 27.64坪
A1擁有雙面採光,面對著松江路和25巷,擁有雙面採光,3房2衛規劃,若是親子家庭入住,早上趕上班上學也不怕搶著用浴室。
澤暘松江將結構柱規劃在外側,即使是小坪數3房也能有方正格局,避免畸零地空間問題。開放式客廳和廚房餐廳,陽台面對著松江路好採光,週末都想賴在這兒,親自下廚來一頓浪漫早午餐。

低檯度大窗框,即使是次臥室也能享有迷人午後陽光。
主臥室空間寬敞,好喜歡樣品屋設計的窗邊臥榻。
另一間臥室也能靈活運用,樣品屋則是和主臥室打通,設計成專屬更衣室和化妝區,就說你真的很懂女生齁哈哈哈!

澤暘松江|B1 2房2衛 23.45坪
澤暘松江也有等比例縮小版迷你屋,上下左右東西南北全方位感受空間設計,樑柱都有清楚標示,陽台、客廳、臥室、廚房和衛浴等一覽無遺,就連馬桶和洗手台也完美還原。
B1是2房2衛規劃,面對著松江路25巷和建國啤酒廠,主臥室有著難得的雙面開窗,適合跟我一樣注重採光的你們。其中一間次臥室依然擁有大面窗,另一間一樣能彈性作為更衣間或是儲藏室。
澤暘松江|B4 2房1衛浴 19.14坪
前段有提到B4是最讓我心動的戶別,從迷你模型更能清楚看出格局,客廳、主臥室、次臥室和浴室通通都有採光,單身貴族也能打通成一間大臥室,直接享受兩面低檯度大窗,都能當作我的居家自然光攝影棚了!
澤暘松江賞屋心得
好啦,這篇台北中山區賞屋心得也要到此告一段落了,澤暘松江座落在松江路上,要到忠孝新生和松江南京捷運站都方便,地理位置生活機能好得沒話說,擁有稀有角地清幽寧靜氛圍,1至3房規劃,即使小坪數也能享有充足自然光,標準配備都質感有誠意,推薦給正在尋找蛋黃區預售屋的你們。



























































無留言